Ouseburn Urban Observatory
My first major design project, the Ouseburn Urban Observatory was a piece of coursework forming the final semester of the BA Architecture (Hons) program at Newcastle university.
Location:
Ouseburn Observatory,
Ouseburn,
Newcastle Upon Tyne
Project Type:
Community/Civic
Materials:
Timber/Glulam/Concrete/Cor-TEN
Date:
2021

Ouseburn Urban Observatory, Garden View
Brief
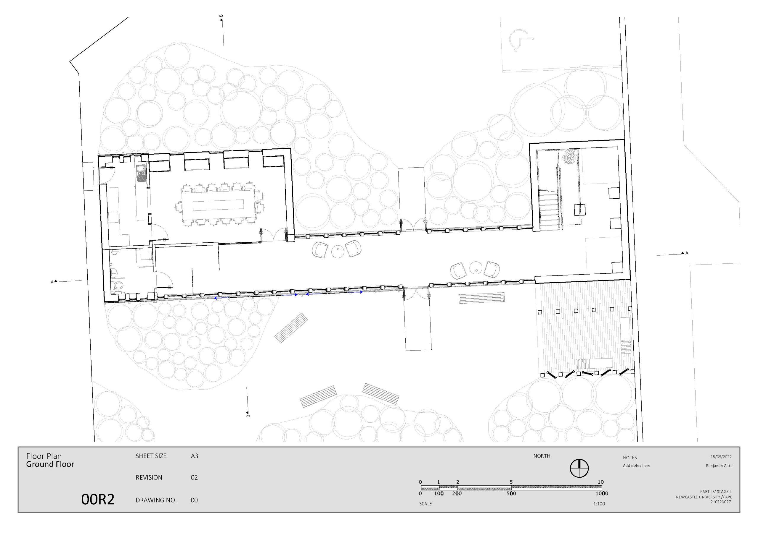
The brief for this project called for an urban observatory in one of two sites within Ouseburn. The site I positioned my project on is a brown field site, neighboured by an arts centre, in the centre of Ouseburn. It is surrounded by industrial buildings and modern design, so I wanted to create something which brought these ideas together and re-naturalised the site at the same time.




Design
My output for this project featured on creating a space which connected the community, an urban observatory, and the environment. The entire site became a testing ground. A space where educational centres could experiment with the growing and changing landscapes around the site, and determine its effect on nature. This space formed the tip of the tower. Beneath the space, is a vertical art gallery, capturing light from above and creating a chamber which displays work from around the Ouseburn area. Opposite the tower is a community room – served by a kitchen – this room can host meetings, classes, and community engagement programs. The community space and tower are connected by a timber and glass walkway, ensuring the natural site isn’t disturbed greatly by the building, by allowing people to view through the structure into the rewilding behind. COR-ten steel is then clad on the exterior faces of the structure to manage light into the building, but also to bring vibrancy to the timber clad structure.
